
Dem Architekturbüro Sauerbruch Hutton gelingt der Umbau eines Rechenzentrums in ein zeitgemäßes Bürogebäude. Sie setzen dabei auf eine raffinierte Vorhangfassade mit Farbe, Glas und Mineralwolle.
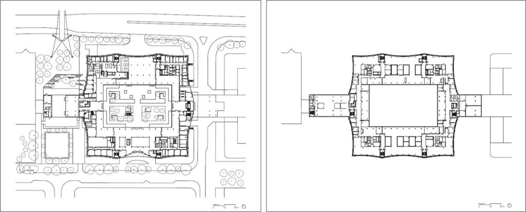
Wer auf der breiten Münchener Ringstraße in Richtung Osten fährt, der erlebt nur wenige Sekunden hinter der Auffahrt zur A9 einen flüchtigen Farbmoment, der im Rückspiegel wie eine Sinnestäuschung anmutet. Grund dafür ist der Umbau eines alten Rechenzentrums zu einem Bürogebäude der Münchener Rückversicherungs-Gesellschaft, geplant von Sauerbruch Hutton. Das Rechenzentrum war ein Relikt der 1980er Jahre mit goldener Spiegelfassade und intaktem Rohbau ‒ nutzbar, aber nicht mehr zeitgemäß. Die Architekten entkernten das Gebäude und formten den Rohbau um: Um Licht in die tiefen Grundrisse zu bekommen, schnitten sie zwei überdachte Atrien in den Baukörper. Das Betonskelett des so entstandenen Gebäudes hatte eine äußere Gebäudeflucht, aus der die bestehenden Treppenhäuser herausstanden.
Die Idee der Architekten war, dem Stahlbetonskelettbau eine neue Fassade vorzuhängen und dabei die Treppenhäuser in eine einheitliche Fassadenflucht einzubinden. Dazu planten sie eine abgetreppte Fassade. Deren einzelne Module sind zueinander versetzt und erwecken den Anschein einer geschwungenen Hülle. Dabei ist kein Bauteil gekrümmt, wie der Büropartner und Projektarchitekt Falco Herrmann versichert: „Alle Fassadenelemente hängen parallel zueinander. Lediglich ihr Versatz nimmt zu den Treppenhäusern und Gebäudekanten hin zu.“ Es ist eine äußerst komplexe Konstruktion. Jedes Segment der Hülle ist daher individuell zugeschnitten.
Die Vorbereitungen im Rohbau waren aufwendig: Um die Elemente mit Versatz zueinander vor den Skelettbau zu hängen, ließen die Architekten die äußeren Deckenkanten mit Diamantsägen und Wasserschneidern passend formen und in anderen Bereichen kleine Deckenteile aus Stahlbeton ergänzen. So entstand eine gezackte, äußere Bauteilkante, auf die man Brüstungen aus Stahlbeton und teilweise aufgemauerten Kalksandstein montierten konnte. An diesen Brüstungen hängt eine flexible Unterkonstruktion aus Aluminium sowie eine 17,5 cm dicke Dämmung aus Mineralwolle.
Von außen wirkt das einzelne Fensterelement samt Kippflügel und gläserner Verkleidung der Brüstungen wie ein vorgefertigtes Element. Herrmann sagt: „Dabei wurden alle Teile auf der Baustelle erst zusammengefügt, so konnte man Bauteiltoleranzen auffangen und die Dämmebenen überlappen.“ Denn der Versatz der Fensterelemente ist ein besonderer Knackpunkt hinsichtlich Wärme- und Schallschutz. Der größte Versatz beträgt 30 cm, ist also größer als die Dämmstärke. Also musste die Mineralwolldämmung des jeweils flacheren Elementes ein Stück hinter das angrenzende Element reichen, um am Stoß das Dämmmindestmaß zu garantieren. So ließen sich der Wärme- und Schallschutz der Fassade sowie deren Brandschutz sichern.
Dass die Fassade ihre Farbwirkung entfaltet, liegt an den Versätzen. Die Lisenen der Fenstermodule sind seitlich eingefärbt, wobei sich jeweils eine Farbe auf einen Betrachtungspunkt bezieht und somit auf zwei Fassadenseiten erscheint. Der Architekt erklärt: „Es ist das Prinzip der kinetischen Polychromie.“ Wechselt also der Betrachter seine Position zum Gebäude, verändert sich die wahrgenommene Farbigkeit mit der Schnelligkeit seiner Fortbewegung. Aus dem fahrenden Auto ergibt sich ein schneller Farbwechsel, kurz wie ein Lidschlag.
Zu Fuß gehende Passanten entdecken den Farbwechsel womöglich erst auf dem Rückweg, wenn sie sich dem Gebäude aus einer anderen Perspektive nähern. Weil die Versätze unterschiedlich stark hervorragen, verdichtet sich die Farbwirkung zu den Gebäudekanten, was den Schwung der Fassade optisch verstärkt. Übrigens, wer sich dem Gebäude orthogonal nähert, wird nichts als eine dunkle Glasfassade sehen.
Die Fassade ist also ein Resultat aus den inneren Gebäudezwängen, wie der Lage der Treppenhäuser, und den städtebaulichen Faktoren, nämlich der Wahrnehmung des Gebäudes in der Fortbewegung über eine der am stärksten befahrenen Straßen Münchens.
Sauerbruch Hutton ist bekannt für seine nachhaltigen, mitunter auch hochtechnischen und energieeffizienten Gebäude. In diesem Gebäude manifestiert sich Nachhaltigkeit anders, nämlich im Ressourcenschutz und der Tatsache, dass hier beispielhaft ein Stahlbeton-Großbau aus den 1980er Jahren im Raumprogramm wie auch in der Fassade und Gebäudetechnik saniert wurde. Der hier vorhandene Bautypus könnte viele Architekten derzeit beschäftigen, weil in den 1960ern bis 1980er viele großmaßstäbliche Skelettbauten entstanden. Aber oft ist heute der Abriss eines solchen komplexen Altbaus die bevorzugte Vorgehensweise. Denn einfach ist eine Bestandssanierung von Großbauten selten, wie Herrmann sagt:
„Das Schwierigste war es, auf den Bestand selbst mit seinen Unwägbarkeiten und auf die strengen Vorgaben beim Umbau richtig zu reagieren und trotzdem effektiv zu planen.“ Unwägbarkeiten waren zum Beispiel der Grundwasserspiegel, der über die letzten 30 Jahre gestiegen ist, oder die Bewehrungen, die nicht den Bestandsplänen entsprachen. Der Architekt sagt: „Es geht bei diesem Projekt grundsätzlich um die Frage der Nachhaltigkeit durch die sinnvolle Nachnutzung von vorhandener Bausubstanz.“ Auch dieses Gebäude hat zwar eine hochwärmedämmende Fassade, Dreifachverglasung, einen in die Scheiben integrierten, steuerbaren Sonnenschutz, Kühldecken, eine effiziente Lüftungsanlage und eine gute Energiebilanz. Aber Hermann sagt: „Es ist keines der Gebäude, die mit einem extrem niedrigen Kilowattstundenverbrauch hervorstechen. Der Fokus lag auf der grauen Energie und dem richtigen Ansatz, ein bestehendes Gebäude zu nutzen und dadurch Ressourcen zu sparen.“
Alleine durch den Erhalt des vorhandenen Rohbaus und den Verzicht auf einen Neubau spart das Gebäude viel graue Energie, die nach Berechnung der Ingenieure im Büro Werner Sobek den Heizkosten von 34 Jahren entspricht. Dieses Gebäude ermuntert zum Perspektivwechsel – nicht nur bei der Fassade, sondern auch bei den gegenwärtigen Nachhaltigkeitskriterien.
Allgemeine Daten:
Wettbewerb: 2009
Fertigstellung: 2014
Im Innenhof spiegelt die Fassade und erzeugt transparent erscheinenden Layer aus Licht und Dunkel. ©Munich Re, Foto: Marcus Buck, München
Der Trick der Farbwirkung über Eck sind eingefärbte Lisenen, die zu den Gebäudekanten zunehmend mehr hervorspringen. ©Munich Re, Foto: Marcus Buck, München
Im Innern erkennt man noch das Betonskelett des Altbaus. Glasfassaden, Atrien und Galerien bringen Licht ins ehemals dunkle Gebäude. ©Munich Re, Foto: Marcus Buck, München
Früher ein Rechenzentrum, jetzt offene Büros. Die Umnutzung war eine Frage der Nachhaltigkeit und einer guten Belichtung im Innern. ©Munich Re, Foto: Marcus Buck, München
Perspektive, Plan: ©Sauerbruch Hutton